slide
Outstanding Agents. Outstanding Results. DIVA staat voor ‘Ster’: wij willen dan ook uitblinken in optimale service en kwaliteit
Sold

Sold: Graafsedwarsstraat 69, 6512 ER Nijmegen

€565,000
Type of residence Apartment, ground floor apartment, apartment
Liveable area 116.6 m²
Acceptance By consultation
Status Sold

Note

General

*Sfeervol wonen in hartje Bottendaal*

Ben je op zoek naar een woning waar je kunt genieten van het levendige stadsleven, maar waar je ook thuiskomt in een rustige omgeving met een fijne tuin? Dan is Graafsedwarsstraat 69 misschien wel precies wat je zoekt.

*Gezellig benedenhuis met karakter*

Dit benedenhuis uit 1906 ademt sfeer en historie. De woning is met zorg gemoderniseerd, waar... More info
  • Features

    All characteristics
    Type of residence Apartment, ground floor apartment, apartment
    Construction period 1906
    Status Sold
  • Location

Features

Offer
Reference number 06596
Asking price €565,000
Service costs €100
Heating €194
Upholstered Not furnished
Furnishing Unfurnished
Status Sold
Acceptance By consultation
Last updated 06 November 2025
Construction
Type of residence Apartment, ground floor apartment, apartment
Floor 1st floor
Type of construction Existing estate
Construction period 1906
Roof materials Bitumen
Rooftype Flat
Isolations Floor, Largely insulated glazing, Wall
Surfaces and content
Floor Surface 116.6 m²
Content 385 m³
External surface area storage rooms 2.8 m²
External surface area 4.2 m²
Layout
Number of floors 1 (and one basement)
Number of rooms 4 (of which 3 bedrooms)
Number of bathrooms 1 (and 1 separate toilet)
Outdoors
Location Near public transport, Near school, On a quiet street, Residential area
Garden
Type Back yard
Main garden Yes
Orientation North east
Condition Normal
Garden 2 - Type Front yard
Garden 2 - Orientation South west
Garden 2 - Condition Normal
Energy consumption
Energy certificate C
Boiler
Type of boiler Vaillant HR solide
Heating source Gas
Year of manufacture 2007
Combiboiler Yes
Boiler ownership Owned
Features
Water heating Central heating system
Heating Central heating
Kitchen facilities Built-in equipment
Bathroom facilities Shower, Sink, Toilet, Whirlpool
Has fibre optical cable Yes
Garden available Yes
Has a storage room Yes
Association of owners
Registered at Chamber of Commerce Yes
Periodic contribution Yes
Reserve fund Yes
Home insurance Yes
Cadastral informations
Cadastral designation Hatert M 4585
Area 127 m²
Range Condominium
Ownership Full ownership

Description

*Sfeervol wonen in hartje Bottendaal*

Ben je op zoek naar een woning waar je kunt genieten van het levendige stadsleven, maar waar je ook thuiskomt in een rustige omgeving met een fijne tuin? Dan is Graafsedwarsstraat 69 misschien wel precies wat je zoekt.

*Gezellig benedenhuis met karakter*

Dit benedenhuis uit 1906 ademt sfeer en historie. De woning is met zorg gemoderniseerd, waarbij originele details behouden zijn gebleven. Hoge plafonds, grote ramen en authentieke elementen geven het huis een warm en ruimtelijk gevoel.

*Ruimte voor eigen invulling*

De woning biedt verrassend veel mogelijkheden. De indeling is praktisch en flexibel. Er zijn veel ingebouwde kasten en opvallend veel vierkante meters voor deze wijk.

Graafsedwarsstraat 69 is een woning met karakter, rust en alle gemakken van de stad binnen handbereik. Maak snel een afspraak voor een bezichtiging en ervaar zelf hoe fijn het wonen is in Bottendaal.

*Over Bottendaal*

De wijk Bottendaal staat bekend om haar levendige en gezellige sfeer. Je vindt er de leukste cafés, restaurantjes en volop muzikale en culturele buurtactiviteiten. Picknicken in het Thiemeparkje? Je bent er binnen één minuut. Het station, Doornroosje en de binnenstad bereik je in enkele minuten lopen of fietsen.
En geloof het of niet: zelfs het Waalstrand bij de Spiegelwaal ligt op nog geen tien minuten fietsen.
De Graafsedwarsstraat zelf is rustig en doodlopend, met voldoende parkeergelegenheid. De bewoners zijn vriendelijk en behulpzaam, maar respecteren elkaars privacy.

*Eigen website*
Check www.graafsedwarsstraat69.nl voor meer info en documenten!

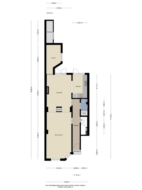
Layout

*Souterrain*
Als je de trap afkomt, valt meteen de ruimte op die dit hoge souterrain biedt. Een groot deel van het souterrain is namelijk tot onder de fundering uitgegraven. Aan de voorkant van het huis vind je een slaapkamer met ruime koekoek en twee openslaande deuren naar de binnenplaats, waardoor er veel licht binnenvalt. Via de lange en brede gang met inbouwkasten (ook voor de droger en de wasmachine), bereik je de badkamer met jetstream-bad, de tweede wc en dubbele wastafels. Aan de achterkant ligt een tweede slaapkamer. Ook deze heeft een brede koekoek voor optimale lichtinval.

First floor

*Ruime woonkamer en eetkamer met tuinzicht*
De lange hal, met daarin een wc en een ruime voorraadkast, leidt naar de lichte woonkamer waar het daglicht mooi binnenvalt. De woonkamer en eetkamer zijn subtiel van elkaar gescheiden door een praktische, geïntegreerde kast met stijlvolle houten panelen. In de eetkamer is plek voor een grote tafel, met openslaande deuren naar de tuin – perfect voor gezellige etentjes of een rustig ontbijt in het groen. Aangrenzend vind je de studeerkamer / thuiswerkplek / studio. Deze knusse ruimte met tuinzicht is een heerlijke plek om geconcentreerd te kunnen werken.

*Keuken met toegang tot de tuin*
De handige keuken sluit aan op de eetkamer en biedt voldoende opbergruimte. Ook vanuit hier stap je zo de tuin in.

Garden

*Voor- en achtertuin*
Aan de voorzijde ligt een kleine knusse voortuin, ideaal voor een bankje waarop je gemakkelijk een praatje maakt met je voorbij wandelende buurtgenoten. De ruime en lichte achtertuin biedt juist meer privacy en is het hele jaar door groen, dankzij de reusachtige laurierkers en eucalyptus. Natuurlijk is er een schuur met ruimte voor wat fietsen, tuingereedschap en de BBQ.

Details

* Bouwjaar 1906 – met originele details
* Type: benedenwoning / appartement
* Wijk: Bottendaal – levendig en centraal
* Voor- en achtertuin – zon én privacy
* Energielabel C – toekomstbestendig
* Gelegen in een rustige, doodlopende straat
* Dichtbij binnenstad en centraal station
* Ziekenhuizen en universiteit makkelijk bereikbaar met de fiets

Floor plans

ZonZone

Close

Recently viewed