slide
Outstanding Agents. Outstanding Results. DIVA staat voor ‘Ster’: wij willen dan ook uitblinken in optimale service en kwaliteit
New for sale

For sale: President Kennedylaan 26, 2343 GR Oegstgeest

€535,000
Type of residence House, single-family house, terraced house
Plot size 133 m²
Liveable area 109 m²
Acceptance By consultation
Status New for sale

Note

General

This bright and well-maintained family home (energy label C) features a spacious U-shaped open-plan kitchen (2020), an L-shaped living/dining room with a cozy wood-burning stove, three spacious bedrooms, a separate wall-hung toilet with a hand basin, a spacious and modern bathroom (2020) with a freestanding bathtub, walk-in shower, four sinks, and a wall-hung toilet, a separate laundry room, a... More info
  • Features

    All characteristics
    Type of residence House, single-family house, terraced house
    Construction period 1966
    Status New for sale
  • Location

Features

Offer
Reference number 00539
Asking price €535,000
Status New for sale
Acceptance By consultation
Construction
Type of residence House, single-family house, terraced house
Type of construction Existing estate
Construction period 1966
Roof materials Bitumen, Tiles
Rooftype Front gable
Certifications Energy performance advice
Isolations Largely insulated glazing, Roof, Wall
Surfaces and content
Plot size 133 m²
Floor Surface 109 m²
Content 387 m³
External surface area 6 m²
Layout
Number of floors 3
Number of rooms 4 (of which 3 bedrooms)
Number of bathrooms 1 (and 1 separate toilet)
Outdoors
Location Near public transport, Near school, Residential area
Garden
Type Back yard
Main garden Yes
Orientation South
Has a backyard entrance Yes
Garden 2 - Type Front yard
Garden 2 - Orientation North
Energy consumption
Energy certificate C
Boiler
Type of boiler Remeha
Heating source Gas
Year of manufacture 2006
Combiboiler Yes
Boiler ownership Owned
Features
Water heating Central heating system, Electric boiler
Heating Central heating, Wood stove
Ventilation method Mechanical ventilation
Kitchen facilities Built-in equipment
Bathroom facilities Bath, Double sink, Toilet, Walkin shower, Washbasin furniture
Has a flue tube Yes
Has fibre optical cable Yes
Garden available Yes
Has a phone line Yes
Has an internet connection Yes
Has a skylight Yes
Has ventilation Yes
Cadastral informations
Cadastral designation Oegstgeest C 7675
Area 133 m²
Range Entire lot
Ownership Full ownership
Index number 100

Description

This bright and well-maintained family home (energy label C) features a spacious U-shaped open-plan kitchen (2020), an L-shaped living/dining room with a cozy wood-burning stove, three spacious bedrooms, a separate wall-hung toilet with a hand basin, a spacious and modern bathroom (2020) with a freestanding bathtub, walk-in shower, four sinks, and a wall-hung toilet, a separate laundry room, a separate boiler room, a storage room, and a deep, low-maintenance, south-facing front and back garden with two covered patios and convenient rear access.

The house is ideally located in the charming, quiet, and desirable "Bloemenbuurt" neighborhood, with playgrounds, parks, and schools just around the corner. It is within walking distance of the Lange Voort shopping center, which offers a wide range of shops (including Albert Heijn and Jumbo supermarkets), the lively Tuesday market, and various restaurants and cafes. It is also close to the shops of the charming "De Kempenaerstraat," various primary and (international) secondary schools, sports and recreational facilities, and public transport. Bio Science Park, Leiden Central Station, the charming historic center of Leiden and two major hospitals (LUMC/Alrijne) are within cycling distance.

Furthermore, it's conveniently located near major roads (A4/A44) to Amsterdam/Schiphol and The Hague, the Kagerplassen lakes, the Klinkenbergerplas recreation area, and the beaches and dune areas of Katwijk-Noordwijk-Wassenaar.

Oegstgeest is listed annually in the Top 10 Best Municipalities to Live In and was named the best municipality to live in in South Holland in 2022 (source: Elsevier Weekblad) and the second greenest municipality in the Netherlands.

Layout

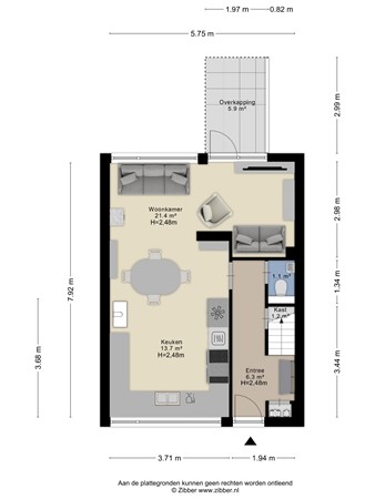
The spacious front garden (approx. 25 m²) offers ample space for a seating area, bicycles or play equipment. Entrance; bright and deep hall with meter cupboard, staircase, under-stairs cupboard and separate wall-hung toilet with washbasin; bright living-dining room with at the front the spacious U-shaped kitchen (2020) equipped with, among other things, wide STOVES stainless steel 7-burner gas stove with 3 ovens (remains), microwave, dishwasher (2025), close-in boiler, 'American' model fridge-freezer with ice maker (Samsung brand remains) and bar; dining area with attractive wood-burning stove (remains); living room at the rear with access door to the sheltered and low-maintenance back garden (approx. 54 m²) facing sunny south with 2 canopy areas and convenient rear entrance.

First floor

Landing; separate laundry room, two (formerly three) spacious bedrooms with fitted wardrobes (the front bedroom is currently used as a home office/relaxation room/home cinema); spacious and modern fully tiled bathroom (2020) with a freestanding bathtub, wall-hung toilet, walk-in shower with both rain and hand showers, four sinks, a towel radiator, mechanical ventilation, a large mirror, and cupboard space.

Second floor

The second floor is accessible via a fixed staircase. Landing; two storage rooms (one of which houses the central heating system) and a spacious and bright attic bedroom thanks to the two Velux skylights. Ample storage space behind the knee walls.

Details

- Built in 1966
- Living area: 109 m²
- Other indoor space: 0 m²
- Building-related outdoor space: 6 m²
- House volume: 387 m³
- Plot size: 133 m²
- Green, child-friendly environment within walking distance of many amenities, including (primary) schools, childcare, shops, and playgrounds in the area
- Energy label C
- Almost fully double-glazed, wall and roof insulation
- Well-maintained family home with, among other things, 3 (bedrooms), a large kitchen, a spacious and modern bathroom with mechanical ventilation, 2 toilets, 2 Velux skylights, south-facing front and back gardens with 2 covered patios and rear access
- Public parking
- Many items remain; see the list of things, including window decoration, a wood-burning stove, a 7-burner STOVES stainless steel gas stove, and an "American"-style fridge/freezer (Samsung) with Ice maker
- Home cinema Panasonic 77" screen available for takeover
- Delivery by consultation, can be done soon

We will include the following clauses in the purchase agreement:
- For homes older than 30 years, the old age and materials clause applies
- For homes built before 1993, the asbestos clause applies

Floor plans

ZonZone

Close

Recently viewed