slide
Outstanding Agents. Outstanding Results. DIVA staat voor ‘Ster’: wij willen dan ook uitblinken in optimale service en kwaliteit
New for sale

For sale: Makelaar woonarken www.thuisinwoonarken.nl

€75,000 f.o.t.c.
Address: Bontekoekade 121, 2516 LD The Hague
Type of residence House, houseboat, detached house, house on the water
Plot size 100 m²
Liveable area 100 m²
Acceptance Immediately
Status New for sale

Note

General

HAAST GEBODEN (I.V.M. SLUITING BIEDINGEN)!
Afgelopen week is de verkoop gestart met een live video bezichtiging die u nu op de website van DIVA Makelaars kunt terugkijken. De agenda voor individuele bezichtigingen is helaas vol, maar mocht u met enthousiasme de video en alle informatie hebben bekeken dan is het mogelijk om op basis van deze informatie een bod uit te brengen. Mocht de woning u... More info
  • Features

    All characteristics
    Type of residence House, houseboat, detached house, house on the water
    Construction period 2025
    Status New for sale
  • Location

Features

Offer
Reference number DIVA09439
Asking price €75,000 f.o.t.c.
Status New for sale
Acceptance Immediately
Last updated 02 December 2025
Construction
Type of residence House, houseboat, detached house, house on the water
Type of construction Existing estate
Construction period 2025
Roof materials Bitumen
Rooftype Flat
Surfaces and content
Plot size 100 m²
Floor Surface 100 m²
Content 220 m³
Layout
Number of floors 1
Number of rooms 4 (of which 3 bedrooms)
Number of bathrooms 1
Outdoors
Location At waterside, Near public transport, Near school, On waterway, Residential area, Unobstructed view
Garden
Type Front yard
Main garden Yes
Orientation South west
Condition Normal
Boiler
Heating source Gas
Features
Heating Central heating
Garden available Yes
Has a storage room Yes
Cadastral informations
Cadastral designation Den Haag 01 06
Area 100 m²
Ownership See document

Description

HAAST GEBODEN (I.V.M. SLUITING BIEDINGEN)!
Afgelopen week is de verkoop gestart met een live video bezichtiging die u nu op de website van DIVA Makelaars kunt terugkijken. De agenda voor individuele bezichtigingen is helaas vol, maar mocht u met enthousiasme de video en alle informatie hebben bekeken dan is het mogelijk om op basis van deze informatie een bod uit te brengen. Mocht de woning u worden gegund dan nodigen wij u uiteraard alsnog uit voor een individuele bezichtiging. Biedingen verlopen via divamakelaars.nl/eerlijkbieden en dienen uiterlijk vrijdag 5 december om 12.00 uur door de makelaar te zijn ontvangen.

WONEN OP HET WATER - WOONARK MET LIGPLAATS AAN DE HAAGSE TREKVLIET
Op zoek naar een bijzondere woonplek in het centrum van Den Haag? Aan de Haagse Trekvliet, op korte afstand van het bruisende centrum, ligt woonark ‘Sperwer’ met bijbehorende ligplaats. Een unieke kans voor wie droomt van wonen aan het water en een woning volledig naar eigen wens wil realiseren.

Deze woonark heeft jarenlang dienst gedaan als fijne thuishaven, maar is de laatste jaren slecht onderhouden. Ons advies is om de woonark te slopen en het casco (na toestemming van de gemeente) te gebruiken als terras. Hierna kan er een nieuwbouw woonark gerealiseerd worden met 1 woonlaag en maximaal 20 x 5 meter welke naar eigen inzicht ingedeeld kan worden. De locatie, de mogelijkheden en het vrije uitzicht maken dit echter tot een bijzonder aantrekkelijk project.

RUST EN RUIMTE, MIDDEN IN DE STAD
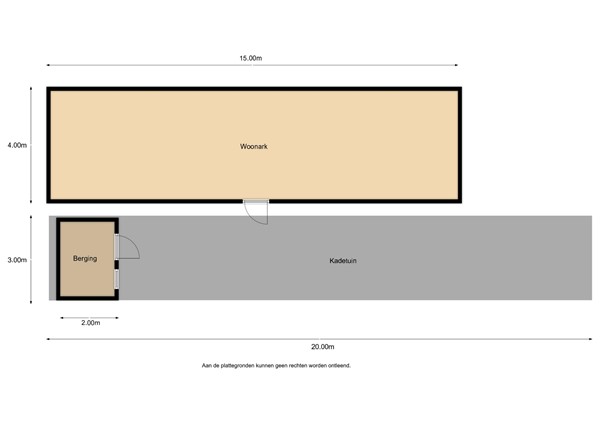
De woonark ligt op een gezellige plek aan de Trekvliet, waar je iedere dag kunt genieten van het uitzicht over het water. De situatie biedt volop ruimte voor het plaatsen van een nieuwe ark met de volgende afmetingen:
Lengte: 20 meter
Breedte: 5 meter
Maximale hoogte: 2,80 meter (gemeten vanaf de waterlijn)
Daarnaast bestaat de mogelijkheid om een drijvend terras te realiseren—een heerlijke plek om te ontspannen, te borrelen of te genieten van het kabbelende water.

TOPLOCATIE VOOR ECHTE STADSLIEFHEBBERS
Hier woon je letterlijk aan de rand van het centrum, met alle voorzieningen binnen handbereik. Station Holland Spoor, de Haagse Hogeschool, supermarkten, gezellige horeca en diverse culturele hotspots bevinden zich op loopafstand. Een uitstekend uitgangspunt voor studenten, starters, young professionals en creatievelingen die het stadsleven willen combineren met de rust van het water.

VRIJ WONEN, OPTIMALE PRIVACY
Een groot pluspunt: op deze locatie heb je geen directe buren, waardoor je volop privacy en rust ervaart. Wonen op het water betekent bovendien dat je de ark vrij op naam koopt—je betaalt dus geen overdrachtsbelasting, notariskosten of andere bijkomende kosten. Wel is er sprake van liggeld: circa € 400,- per jaar en voor een drijvend terras: circa € 115,- per jaar

KOM ZELF DE SFEER PROEVEN
Ben jij benieuwd naar de mogelijkheden van deze woonark met unieke ligplaats? We laten je graag zien hoe bijzonder het wonen aan de Haagse Trekvliet is—zeker op zo’n centrale plek in Den Haag. Neem contact op voor een bezichtiging; de makelaar informeert je graag over alle opties en kansen voor deze bijzondere locatie.

LET OP! Helaas is er gezien de staat van de woonark geen mogelijkheden om een hypotheek te verkrijgen. Voor vervanging en/of een nieuwe woonark is het wel mogelijk om hypotheek te verkrijgen.

Bijzonderheden:
- Beton casco met houten opbouw;
- Geen overdrachtsbelasting;
- De woonark/ligplaats is voorzien van alle walaansluitingen en aangesloten op de riolering;
- Drijvend terras behoort tot de mogelijkheden: hiervoor kan een vergunning worden aangevraagd;
- Betaald parkeren 9.00-24.00 uur, bewoners en bezoekersvergunning mogelijk;
- Op loopafstand van het Hollands Spoor, Haagse Hoge School en centrum Den Haag;
- De gemeente Den Haag is voornemens een fietsbrug aan te leggen, dit heeft mogelijk consequenties voor de huidige woonarkligplaatsen, meer informatie kunt u vinden op de website van de gemeente Den Haag: https://bereikbarestad.denhaag.nl/werkzaamheden/trekvlietplein-fietsbrug-trekvliet.

Verkoopcondities:
• Biedingen verlopen via www.divamakelaars.nl/eerlijkbieden (hier kunt u ook een document vinden met de veel voorkomende vragen)
• Deze woonark met ligplaats is beschikbaar voor verkoop met een aantrekkelijke minimum biedprijs;
• Oplevering in overleg;
• Niet zelfbewoningsclausule van toepassing;
• Ongeacht het bouwjaar en de staat van onderhoud zal een ouderdomsclausule worden opgenomen.

LET OP!
DE VERSTREKTE INFORMATIE IS GEBASSEERD OP EEN NIEUW TE BOUWEN WOONARK. OP BASIS VAN DE LIGPLAATS VAN DIT FORMAAT IS EEN WOONARK MET 3 SLAAPKAMERS. MOGELIJK. HET ENERGIELABEL ETC. IS OOK GEBASSEERD OP EEN TOEKOMSTIGE NIEUW TE BOUWEN WOONARK. U KUNT DUS GEEN RECHTEN ONTLENEN AAN DE VERMELDE GEGEVENS.

Floor plans

Brochure(s) and other documents

ZonZone

Close

Recently viewed