slide
Outstanding Agents. Outstanding Results. DIVA staat voor ‘Ster’: wij willen dan ook uitblinken in optimale service en kwaliteit
Sold

Sold: Makelaar Morgenstond www.thuisinmorgenstond.nl

€400,000
Address: Meppelweg 662, 2544 BN The Hague
Type of residence Apartment, gallery flat, apartment
Plot size 2,581 m²
Liveable area 85.2 m²
Acceptance By consultation
Status Sold

Note

General

MOVE-IN READY APARTMENT WITH ENERGY LABEL A (BUILT IN 2018), TWO SPACIOUS BEDROOMS, BATHROOM WITH BATHTUB AND SHOWER, LARGE TERRACE, A COVERED PRIVATE PARKING SPACE IN A SECURE AREA, AND A PRIVATE BIKE STORAGE
Looking for a modern and comfortable apartment with worry-free parking? Don’t miss this opportunity—schedule a viewing today!

MODERN & COMFORTABLE LIVING IN COMPLEX “VITA”
Located on... More info
  • Features

    All characteristics
    Type of residence Apartment, gallery flat, apartment
    Construction period 2018
    Status Sold
  • Location

Features

Offer
Reference number DIVA09436
Asking price €400,000
Service costs €164.76
Status Sold
Acceptance By consultation
Last updated 07 February 2026
Construction
Type of residence Apartment, gallery flat, apartment
Floor 2nd floor
Type of construction Existing estate
Accessibility People with disabilities
Construction period 2018
Roof materials Bitumen
Rooftype Flat
Certifications Energy performance advice, General housing inspection, Police certificate
Isolations Full, HR glazing, Insulated glazing
Surfaces and content
Plot size 2,581 m²
Floor Surface 85.2 m²
Content 281 m³
External surface area storage rooms 5.1 m²
External surface area 11.5 m²
Balcony 5.77 m²
Layout
Number of floors 1
Number of rooms 3 (of which 2 bedrooms)
Number of bathrooms 1 (and 1 separate toilet)
Energy consumption
Energy certificate A
Features
Number of parking spaces 1
Number of covered parking spaces 1
Water heating District heating
Heating District heating, Floor heating
Ventilation method Mechanical ventilation, Natural ventilation
Bathroom facilities Bath, Shower, Sink
Parking Parking lot
Has a balcony Yes
Has an elevator Yes
Has fibre optical cable Yes
Has an internet connection Yes
Has a storage room Yes
Has sliding doors Yes
Has ventilation Yes
Association of owners
Registered at Chamber of Commerce Yes
Annual meeting Yes
Periodic contribution Yes
Reserve fund Yes
Long term maintenance plan Yes
Maintenance forecast Yes
Home insurance Yes
Cadastral informations
Cadastral designation 's-Gravenhage AW 4956
Range Condominium
Ownership Ground lease
Index number 13
Charges Perpetually bought off

Description

MOVE-IN READY APARTMENT WITH ENERGY LABEL A (BUILT IN 2018), TWO SPACIOUS BEDROOMS, BATHROOM WITH BATHTUB AND SHOWER, LARGE TERRACE, A COVERED PRIVATE PARKING SPACE IN A SECURE AREA, AND A PRIVATE BIKE STORAGE
Looking for a modern and comfortable apartment with worry-free parking? Don’t miss this opportunity—schedule a viewing today!

MODERN & COMFORTABLE LIVING IN COMPLEX “VITA”
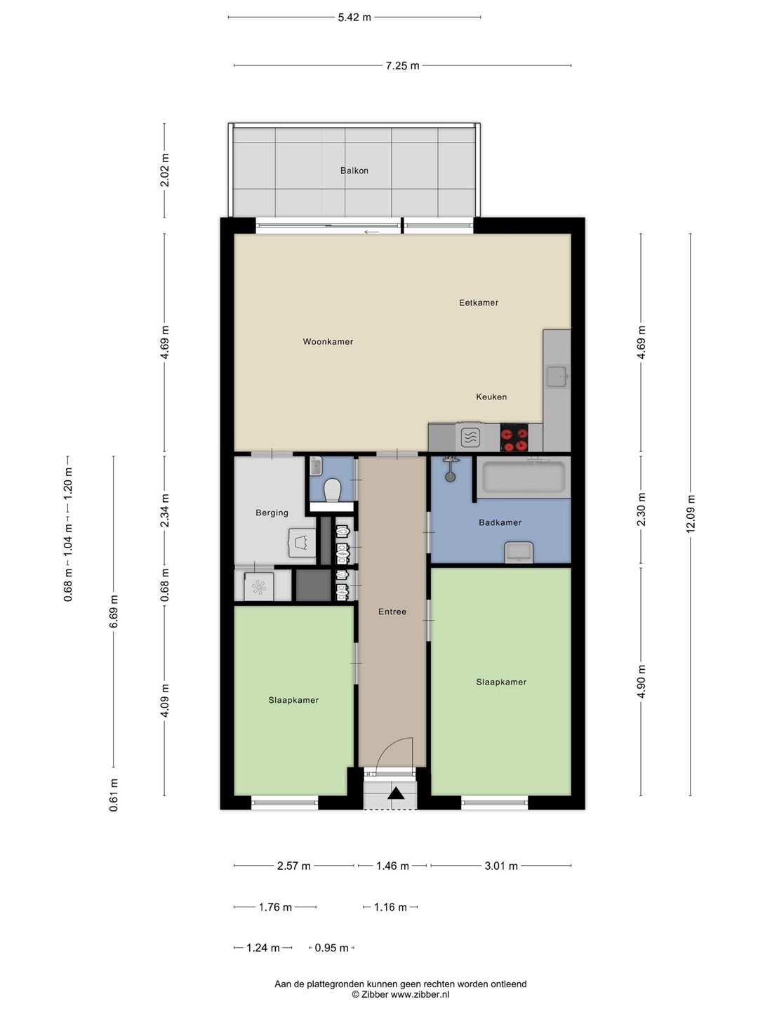
Located on the second floor of the well-maintained apartment complex “Vita” (built in 2018), this bright and spacious 3-room apartment of approximately 85 m² offers all the comfort you’re looking for. The generous living room with open kitchen is filled with natural light thanks to large windows and features sliding doors that open onto a sunny southeast-facing terrace. One major advantage: the ground lease has been fully bought off in perpetuity—so no annual lease payments.

The apartment includes a lovely living room with open-plan kitchen, two spacious bedrooms, a bathroom with both a bathtub and walk-in shower, a separate toilet, and—very convenient—a separate laundry room. Your car will be safely parked in your own spot in the secure, covered garage, and there’s also a private bike storage room with easy access from the outside of the complex.

ENERGY-EFFICIENT & FUTURE-PROOF LIVING
This apartment was designed with sustainability and comfort in mind. With excellent insulation, HR++ glass, underfloor heating connected to district heating, and an individually adjustable ventilation and heating system per room, you’ll enjoy a pleasant indoor climate and low energy costs. Additionally, the apartments are completely gas-free, supporting an eco-friendly and future-oriented lifestyle.

CONVENIENT LOCATION NEAR AMENITIES AND GREEN SPACES
The Morgenstond district has undergone significant upgrades in recent years and now offers a pleasant living environment with abundant greenery, excellent amenities, and great accessibility. You’ll find the Zuiderpark, Almeloplein, and Leyweg shopping center—all just a short walk away. There, you can enjoy a wide range of shops, dining options, and a weekly market. Public transport and major highways (A4, A12, A13) are also easily accessible. The beach at Kijkduin is just a 10-minute drive away.

Interested? Schedule a viewing today and experience the space and comfort of this move-in ready apartment for yourself. Contact us—we’d be delighted to show you around!

Property Highlights
* Built in 2018
* Ground lease fully bought off in perpetuity
* Living area approx. 85 m²
* Energy label A, valid until 28-09-2028
* Central entrance with video intercom, lift, and staircase
* Spacious, southeast-facing terrace
* Two generous bedrooms
* Bathroom with bathtub, walk-in shower, sink, and designer radiator
* Corner kitchen with built-in Etna appliances
* Underfloor heating throughout, via district heating
* Secure and covered private parking space
* Separate private storage unit
* Fully fitted with HR++ double glazing and maintenance-free window frames
* Complex equipped with solar panels, reducing shared energy costs
* Electricity: 10 circuits, 3 RCDs + main switch
* Active Homeowners Association (VvE), 109/4,898 share, contribution €164.76/month incl. parking;
Total reserve fund: €207,660 (as of 31-12-2024), your current share: €6,089.66 (as of 30-07-2025)
* Conveniently located near public transport, shops, schools, and HAGA Hospital

Sales Terms
* Bidding via: divamakelaars.nl/eerlijkbieden
* Offered for sale with an attractive minimum asking price
* Quick transfer possible; timing negotiable
* Buyer’s choice of notary (must be located in The Hague)

Still need to sell your current home?
If you're enthusiastic about this property but haven't yet sold your own, contact our office for a free valuation. We’ll promptly schedule an appointment with one of our agents so you can gain insight into your options without delay.

We have compiled this information with the utmost care, as you may expect from us. However, in exceptional cases, the information provided may prove to be incomplete or inaccurate. As the selling agent, we therefore accept no liability for its correctness or completeness. No rights can be derived from the content of this brochure. This information is provided as an invitation to schedule a viewing and to submit a non-binding offer subject to acceptance.

Measurement Instruction Clause (BBMI)
The measurements follow the BBMI (Branchebrede Meetinstructie), which aims to provide a uniform method for measuring and indicating usable floor area. However, small deviations may still occur due to differences in interpretation, rounding, or measurement limitations.

Floor plans

Brochure(s) and other documents

Virtual tour

ZonZone

Close

Recently viewed