slide
Outstanding Agents. Outstanding Results. DIVA staat voor ‘Ster’: wij willen dan ook uitblinken in optimale service en kwaliteit
Sold subject to conditions

Sold subject to conditions: Makelaar Rustenburg Oostbroek www.rustenburg-oostbroek.nl

€250,000
Address: Soestdijksekade 66, 2574 AN The Hague
Type of residence Apartment, flat with shared staircase, apartment
Liveable area 62 m²
Acceptance By consultation
Status Sold subject to conditions

Note

General

ATTENTION FIRST-TIME BUYERS AND COUPLES!
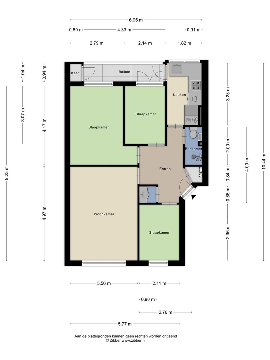
A 4-room apartment on the 2nd floor featuring three bedrooms, a well-maintained kitchen with various built-in appliances, and at the front a beautiful view over the waterway and the houseboats along the Soestdijksekade.

IDEAL FOR FIRST-TIME BUYERS / COUPLES
The apartment offers three bedrooms, each with its own character. The spacious rear bedroom f... More info
  • Features

    All characteristics
    Type of residence Apartment, flat with shared staircase, apartment
    Construction period 1926
    Status Sold subject to conditions
  • Location

Features

Offer
Reference number DIVA09440
Asking price €250,000
Service costs €125
Status Sold subject to conditions
Acceptance By consultation
Last updated 22 December 2025
Construction
Type of residence Apartment, flat with shared staircase, apartment
Floor 2nd floor
Type of construction Existing estate
Construction period 1926
Roof materials Bitumen
Rooftype Flat
Certifications Energy performance advice
Isolations Insulated glazing
Surfaces and content
Floor Surface 62 m²
Content 207 m³
Surface area other inner rooms 0.6 m²
External surface area 4.5 m²
Balcony 4.07 m²
Layout
Number of floors 1
Number of rooms 4 (of which 3 bedrooms)
Number of bathrooms 1
Outdoors
Location At waterside, Near highway, Near public transport, Near school, Near shopping center, On waterway, Residential area, Unobstructed view
Energy consumption
Energy certificate D
Boiler
Type of boiler Remeha
Heating source Gas
Year of manufacture 2013
Combiboiler Yes
Boiler ownership Owned
Features
Water heating Central heating system
Heating Central heating
Ventilation method Natural ventilation
Bathroom facilities Shower, Toilet
Has a balcony Yes
Has cable TV Yes
Has a phone line Yes
Has an internet connection Yes
Association of owners
Registered at Chamber of Commerce Yes
Annual meeting Yes
Periodic contribution Yes
Reserve fund Yes
Home insurance Yes
Cadastral informations
Cadastral designation 's-Gravenhage AL 4716
Range Condominium

Description

ATTENTION FIRST-TIME BUYERS AND COUPLES!
A 4-room apartment on the 2nd floor featuring three bedrooms, a well-maintained kitchen with various built-in appliances, and at the front a beautiful view over the waterway and the houseboats along the Soestdijksekade.

IDEAL FOR FIRST-TIME BUYERS / COUPLES
The apartment offers three bedrooms, each with its own character. The spacious rear bedroom feels extra bright and open thanks to the wide windows, easily accommodating a double bed and a large wardrobe. The adjacent bedroom is also well-sized and provides direct access to the balcony.

The L-shaped kitchen is efficiently arranged, offering generous storage space without compromising the worktop and cooking area. From both the living room and the front-facing bedroom, you can enjoy a wonderful view over the waterway and the houseboats.

DISCOVER THE RUSTENBURG-OOSTBROEK NEIGHBOURHOOD
The apartment is located in a friendly and atmospheric area with all everyday amenities within easy reach. Shops are nearby, making daily shopping convenient. Public transport is only a few minutes’ walk away, offering effortless access to the city and surrounding areas. The neighbourhood provides a great balance of facilities for daily life and recreation, with the beautiful Zuiderpark and the beach within cycling distance.

LOOKING AHEAD
Searching for an apartment with three bedrooms and a central location? Then this is certainly a home worth viewing. It offers plenty of potential—the perfect opportunity to create a place that truly feels like your own.

Schedule a viewing and the agent will gladly show you around.

Details:
• Built in 1926
• Leasehold recorded by notarial deed, canon €28.08 per half-year excl. €16.50 management costs; next revision 01-01-2026, land value €6,239
• Living area: 62 m²
• Energy label pending
• Balcony with practical storage cabinet, northeast-facing
• Fully equipped with uPVC window frames and double glazing
• Electrical installation: 5 circuits, 2 RCDs, 1 main switch
• Central heating boiler: Remeha, year 2013
• Active Owners’ Association, 1/3 share, monthly contribution €125; reserve fund as of 01-01-2024: €8,192
• Free parking until 18:00; thereafter with resident/visitor permit via the Municipality of The Hague
• Central location with respect to public transport, shops, and schools

Sales Conditions:
• Bidding takes place via divamakelaars.nl/eerlijkbieden
• Property offered with an attractive minimum asking price
• Transfer date in consultation
• Buyer may choose the notary, provided they are located in The Hague
• Due to the age of the property, an age clause will be included regardless of its condition

Enthusiastic about this property but still need to sell your current home? Contact our office for a free valuation. We will schedule an appointment immediately so you quickly gain insight into your possibilities.

CAN I AFFORD THIS?
As an additional service, we offer a free and non-binding mortgage calculation through one of our independent partner advisers. Appointments can often be arranged the same day. If desired, we can also assist with the complete mortgage application.

We have compiled this information with great care, as you may expect from us. However, in exceptional cases details may prove incomplete. Therefore, as the selling agent, we accept no liability for the accuracy and/or completeness of this information. No rights can be derived from the data provided. The information is intended to invite you to schedule a viewing and submit an offer subject to approval.

Measurement Instruction Disclaimer
The measurement instruction is based on the BBMI and aims to provide a more uniform method for indicating usable floor area. Variations in measurement results may still occur due to interpretation differences, rounding, or limitations during measurement.

Floor plans

Brochure(s) and other documents

Virtual tour

ZonZone

Close

Recently viewed