slide
Outstanding Agents. Outstanding Results. DIVA staat voor ‘Ster’: wij willen dan ook uitblinken in optimale service en kwaliteit
Sold

Sold: Middelweg 119B, 1911 ED Uitgeest

€362,500
Type of residence Apartment, flat with shared staircase
Liveable area 74 m²
Acceptance By consultation
Status Sold

Note

General

Wonen in het hart van het oude dorp

Dit verzorgde appartement aan de Middelweg 119B biedt een ideale combinatie van gemak, sfeer en locatie. Gelegen bijna naast de bakkerij en op korte loopafstand van de slager en supermarkt, woon je hier letterlijk met de dagelijkse voorzieningen om de hoek. Alles wat je nodig hebt, vind je binnen een paar stappen. Het appartement ligt midden in het gezelli... More info
  • Features

    All characteristics
    Type of residence Apartment, flat with shared staircase
    Construction period 2010
    Status Sold
  • Location

Features

Offer
Reference number 05671
Asking price €362,500
Service costs €175.19
Status Sold
Acceptance By consultation
Last updated 05 November 2025
Construction
Type of residence Apartment, flat with shared staircase
Floor 1st floor
Type of construction Existing estate
Accessibility People with disabilities, Seniors
Construction period 2010
Isolations Full
Surfaces and content
Floor Surface 74 m²
Living area 42.96 m²
Content 266 m³
External surface area storage rooms 6 m²
Layout
Number of floors 1
Number of rooms 2 (of which 1 bedroom)
Number of bathrooms 1
Energy consumption
Energy certificate A
Boiler
Heating source Gas
Combiboiler Yes
Boiler ownership Owned
Features
Water heating Central heating system
Ventilation method Natural ventilation
Bathroom facilities Shower, Sink
Has a French balcony Yes
Has a storage room Yes
Association of owners
Registered at Chamber of Commerce Yes
Annual meeting Yes
Periodic contribution Yes
Reserve fund Yes
Long term maintenance plan Yes
Home insurance Yes
Cadastral informations
Cadastral designation Uitgeest B 9105
Range Condominium
Index number 21
Cadastral designation Uitgeest B 9105
Range Condominium
Index number 21

Description

Wonen in het hart van het oude dorp

Dit verzorgde appartement aan de Middelweg 119B biedt een ideale combinatie van gemak, sfeer en locatie. Gelegen bijna naast de bakkerij en op korte loopafstand van de slager en supermarkt, woon je hier letterlijk met de dagelijkse voorzieningen om de hoek. Alles wat je nodig hebt, vind je binnen een paar stappen. Het appartement ligt midden in het gezellige centrum van Uitgeest. Dankzij de gunstige ligging ben je met de auto of trein zo in Alkmaar, Haarlem of Amsterdam.

Het gebouw

Het appartement bevindt zich op de eerste verdieping van een kleinschalig, goed onderhouden complex. Je hebt toegang via het trappenhuis of de lift. Op de begane grond is een inpandige berging aanwezig voor het stallen van je fiets of het opbergen van spullen.

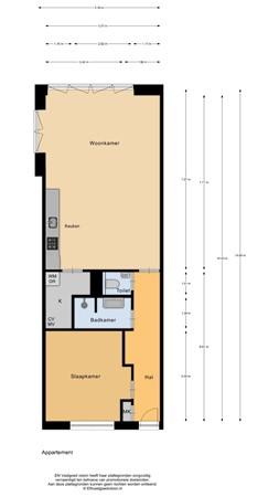
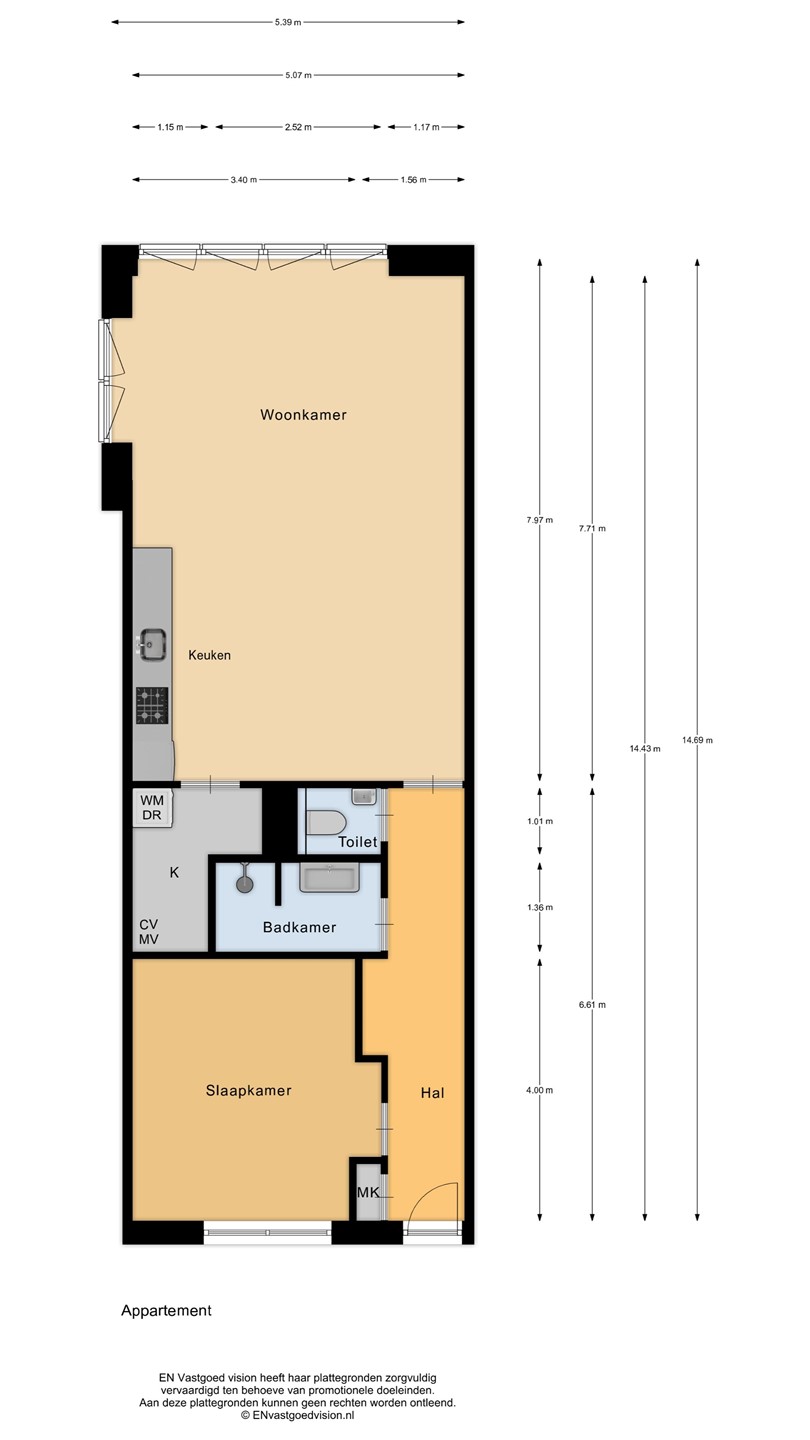
De indeling

Via de voordeur kom je in de hal die toegang geeft tot alle vertrekken. De lichte en ruime woonkamer ligt aan de voorzijde van het appartement en biedt uitzicht op de straat. Grote ramen en meerdere Franse balkons zorgen voor veel lichtinval en een open sfeer.

De woonkamer is praktisch ingedeeld met voldoende ruimte voor een eettafel, zithoek en kasten. De keuken is uitgevoerd in een lichte kleurstelling en voorzien van inbouwapparatuur. Direct grenzend aan de woonkamer bevindt zich een handige berging met de cv-ketel en extra opbergruimte.

In de hal bevinden zich het separate toilet en de nette badkamer met douche en wastafelmeubel. De ruime slaapkamer ligt aan de achterzijde van het appartement, waardoor je hier in alle rust kunt slapen. Het gehele appartement is voorzien van een nette laminaatvloer.

Buitenruimte & parkeren

Op de eerste verdieping van het complex ligt een gemeenschappelijke binnentuin waar bewoners kunnen genieten van een kop koffie of een moment in de buitenlucht. Parkeren kan op het parkeerterrein om de hoek.

Bijzonderheden

*Bouwjaar: 2010
*Energielabel: A
*Woonoppervlakte: ca. 74 m²
*Actieve VvE, maandelijkse bijdrage: € 175,19
*Centrale ligging nabij winkels, horeca, openbaar vervoer en uitvalswegen (A9 richting Haarlem, Alkmaar en Amsterdam)

Floor plans

ZonZone

Close

Recently viewed