slide
Outstanding Agents. Outstanding Results. DIVA staat voor ‘Ster’: wij willen dan ook uitblinken in optimale service en kwaliteit
Sold

Sold: Burgemeester de Bruïnelaan 103, 3331 AD Zwijndrecht

€475,000
Type of residence House, single-family house, corner house
Plot size 247 m²
Liveable area 141.5 m²
Acceptance By consultation
Status Sold

Note

General

Karaktervolle hoekwoning uit 1922 met zeeën van ruimte, royale tuin en opties te over!

Deze charmante eengezinswoning uit 1922 combineert sfeer, ruimte en modern wooncomfort in de populaire wijk van Zwijndrecht. Met maar liefst vijf slaapkamers, een heerlijke serre en een zonnige tuin op het westen is dit hét huis voor gezinnen die klaar zijn voor een volgende stap of doorstromers die een ze... More info
  • Features

    All characteristics
    Type of residence House, single-family house, corner house
    Construction period 1922
    Status Sold
  • Location

Features

Offer
Reference number 00187
Asking price €475,000
Upholstered Not furnished
Furnishing Unfurnished
Status Sold
Acceptance By consultation
Last updated 08 December 2025
Construction
Type of residence House, single-family house, corner house
Type of construction Existing estate
Construction period 1922
Roof materials Tiles
Rooftype Composite
Certifications Energy performance advice
Isolations HR glazing, Largely insulated glazing
Surfaces and content
Plot size 247 m²
Floor Surface 141.5 m²
Content 469 m³
External surface area storage rooms 27 m²
External surface area 10.5 m²
Layout
Number of floors 3
Number of rooms 6 (of which 5 bedrooms)
Number of bathrooms 1 (and 3 separate toilets)
Garden
Type Back yard
Main garden Yes
Orientation West
Has a backyard entrance Yes
Condition Beautifully landscaped
Energy consumption
Energy certificate F
Boiler
Heating source Gas
Combiboiler Yes
Boiler ownership Owned
Features
Water heating Central heating system
Heating Air conditioning
Ventilation method Natural ventilation
Kitchen facilities Built-in equipment
Bathroom facilities Double sink, Walkin shower
Has AC Yes
Has cable TV Yes
Has fibre optical cable Yes
Garden available Yes
Has a phone line Yes
Has an internet connection Yes
Has a storage room Yes
Has solar blinds Yes
Cadastral informations
Cadastral designation Zwijndrecht C 2049
Area 247 m²
Range Entire lot
Ownership Full ownership

Description

Karaktervolle hoekwoning uit 1922 met zeeën van ruimte, royale tuin en opties te over!

Deze charmante eengezinswoning uit 1922 combineert sfeer, ruimte en modern wooncomfort in de populaire wijk van Zwijndrecht. Met maar liefst vijf slaapkamers, een heerlijke serre en een zonnige tuin op het westen is dit hét huis voor gezinnen die klaar zijn voor een volgende stap of doorstromers die een zee aan mogelijkheden zoeken.

Authentieke details geven iedere hoek een warm karakter, terwijl moderne voorzieningen het dagelijks leven een stuk aangenamer maken. Neem bijvoorbeeld de airconditioning. Qua ruimte kom je hier absoluut niks tekort. Achter de karakteristieke gevel ontvouwt zich een verrassend royale woning, waar oud en nieuw elkaar ontmoeten. Dankzij de vijf slaapkamers is er altijd plek voor iedereen, of het nu gaat om een groot gezin, logees of wellicht een fijne thuiswerkplek.

Een absoluut pluspunt – waar veel mensen alleen maar van kunnen dromen – is de ruime, afsluitbare serre aan de achterzijde. Ongeacht het weer geniet je hier van het buitenleven. Schuif lekker met een goed boek naar binnen als het regent, of organiseer een gezellig diner met vrienden terwijl de laatste zonnestralen de ruimte verwarmen.

Wat deze woning ook bijzonder maakt, is de riante en zonnige tuin van maar liefst 82 m2. Ideaal op het westen gelegen, zodat je elke dag verzekerd bent van een lekkere middag- en avondzon. Of je nu groene vingers hebt, zin hebt in een barbecue, of kinderen en huisdieren de vrije ruimte wilt geven – achterom vind je alle ruimte.

Misschien ben je zelf dol op klussen, sleutelen of tuinieren? Dan word je vast blij van de ruime stenen berging achterin de tuin. Perfect voor het stallen van fietsen, gereedschap of het opzetten van een heuse werkplaats. Je hoeft hier niets te laten: de mogelijkheden zijn eindeloos.

En laten we vooral niet vergeten hoe prettig deze locatie is. De wijk Zwijndrecht staat bekend om haar vriendelijke sfeer en centrale ligging. Scholen, winkels, sportvoorzieningen, openbaar vervoer – werkelijk alles is dichtbij. Binnen een mum van tijd rijd je de snelweg op richting Rotterdam of Dordrecht, terwijl je toch geniet van een rustige woonomgeving.

Wacht niet te lang – maak snel een afspraak voor een bezichtiging en ontdek zelf wat deze fantastische woning je allemaal te bieden heeft. Welkom thuis!

Layout

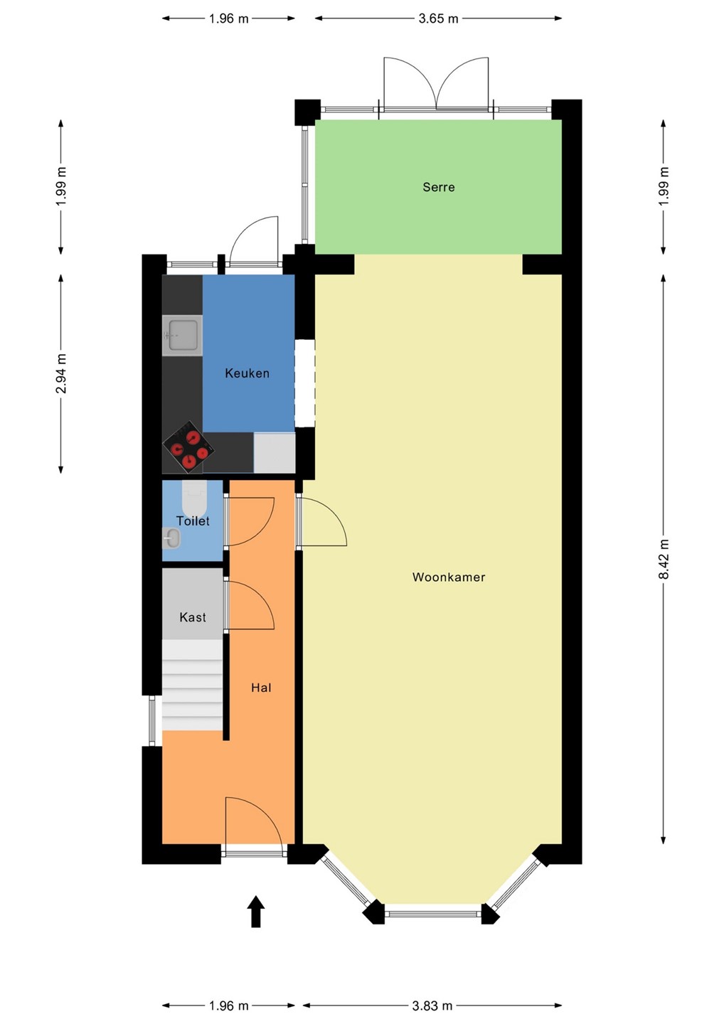
Via de nette entree betreedt u de hal, die toegang biedt tot de verschillende vertrekken op de begane grond. In de hal bevindt zich een handige trapkast voor extra bergruimte en een toilet met fontein.

De woonkamer is royaal van formaat en strekt zich uit over de gehele lengte van de woning en is voorzien van airconditioning. Dankzij de erker aan de voorzijde en de serre met openslaande deuren aan de achterzijde geniet deze ruimte van een overvloed aan natuurlijk licht. De woonkamer biedt volop ruimte voor een gezellige zithoek en een ruime eethoek, ideaal voor familie en gasten.

Aan de achterzijde bevindt zich de serre, een heerlijke lichte ruimte die naadloos aansluit op de woonkamer. De serre is voorzien van openslaande deuren naar de tuin, waardoor binnen en buiten moeiteloos in elkaar overlopen – perfect voor zomerse dagen of ontspannen avonden.

De keuken ligt aan de zijkant van de woning en is praktisch ingedeeld met voldoende werk- en bergruimte. Hier vindt u diverse inbouwapparatuur, waaronder een kookplaat, spoelbak en opstelplaats voor overige apparatuur. Vanuit de keuken is er directe toegang tot de achtertuin. Het geheel heeft een prettig open karakter.

First floor

Via de vaste trap bereikt u de eerste verdieping, waar de ruime overloop toegang biedt tot de diverse vertrekken.

Aan de voorzijde bevindt zich een royale slaapkamer met toegang tot een charmant balkon, ideaal om in de ochtendzon te genieten van een kop koffie. Naast deze kamer ligt een praktische walk-in-closet, deze is ook perfect te gebruiken als thuiswerkplek of kinderkamer.

Aan de achterzijde treft u een tweede, eveneens ruime slaapkamer, voorzien van vaste kasten en dubbele deuren naar het heerlijke dakterras. Dit terras biedt volop privacy en is een fijne plek om te ontspannen in de buitenlucht.

De moderne badkamer is uitgerust met een dubbele wastafel, een ruime douche en een prettig raam voor natuurlijke ventilatie en daglicht. Daarnaast is er een apart toilet, wat extra comfort en gemak biedt voor het hele gezin.

Second floor

Via een vaste trap bereikt u de tweede verdieping, die verrassend veel ruimte biedt. De overloop verbindt twee ruime slaapkamers, elk met een prettig lichtinval door de aanwezige ramen aan de voor- en achterzijde.

Beide slaapkamers beschikken over praktische vaste kasten, waardoor er volop opbergruimte aanwezig is zonder verlies van leefruimte. Dankzij de rechte gevels en de gunstige indeling zijn de kamers uitstekend te gebruiken als volwaardige slaapkamers, logeerkamers of bijvoorbeeld een hobby- of studeerkamer.

Daarnaast bevindt zich op deze verdieping een extra toilet, wat het comfort aanzienlijk verhoogt — ideaal voor grotere gezinnen of gasten.

Deze verdieping vormt een volwaardige uitbreiding van de woonruimte en maakt de woning bijzonder geschikt voor wie op zoek is naar ruimte en flexibiliteit in de indeling.

Garden

De sfeervolle achtertuin, gelegen op het westen, is een waar verlengstuk van de woning. Dankzij de gunstige ligging geniet u hier vanaf de middag tot in de avond van de zon. De tuin is verzorgd aangelegd met een fraaie mix van groene beplanting, sierbestrating en een gezellig terras, waardoor er een prettige balans is tussen privacy en openheid.

Direct aan de woning bevindt zich een zonnig terras, ideaal voor een eettafel of loungeset, waar u heerlijk kunt ontspannen met uitzicht op het groen. Verderop in de tuin vindt u een tweede zitje, omringd door volwassen beplanting, die zorgt voor een natuurlijke en beschutte sfeer.

Een bijzonder element is de ruime, afsluitbare overkapping met houten balkenplafond en verlichting – een heerlijke plek om het hele jaar door buiten te zitten of met vrienden te dineren. De overkapping is bovendien praktisch ingericht met extra opbergruimte en een werkblad met spoelbak.

Achter in de tuin bevindt zich een zeer ruime stenen berging (voorzien van verwarming, electra en water) en via de zijkant van de woning kunt u achterom, wat zorgt voor extra gemak voor fietsen of tuinmateriaal.

Kortom: een groene, zonnige en privacyvolle stadstuin die uitnodigt om volop te genieten van het buitenleven – ideaal voor wie houdt van rust, gezelligheid en sfeer.

Details

Kadastraal bekend; het woonhuis met berging, ondergrond en tuin, plaatselijk bekend Burgemeester de Bruïnelaan 103 te 3331 AD Zwijndrecht, kadastraal bekend gemeente Zwijndrecht, sectie C nummer 2049, groot twee are zevenenveertig centiare;
•Eigen grond
•Bouwjaar: 1922
•Woonoppervlak: 141,5m² (inhoud: circa 469³)
•Stenen berging van 16 m2 en een houten berging van 11 m2
• Overkapping in de achtertuin van 20,5 m2
• Verwarming d.m.v. Cv-ketel
•Energielabel F geldig tot 21-10-2035
•Oplevering in overleg, kan snel!

•In de koopovereenkomst zullen we een niet zelf-bewoond clausule en ouderdomsclausule toevoegen.

•Ondanks dat grote zorgvuldigheid is betracht bij het samenstellen van de verkoopinformatie wordt voor de onjuistheid van de vermelde gegevens door de eigenaar noch door de verkopend makelaar enige aansprakelijkheid aanvaard.

•Rechtsgeldige koopovereenkomst pas ná ondertekening: Een mondelinge overeenstemming tussen de particuliere verkoper en de particuliere koper is niet rechtsgeldig. Met andere woorden: er is (nog) geen koop. Er is pas sprake van een rechtsgeldige koop als de particuliere verkoper en de particuliere koper de koopovereenkomst hebben ondertekend. Dit vloeit voort uit artikel 7:2 Burgerlijk Wetboek. Een bevestiging van de mondelinge overeenstemming per e-mail of een toegestuurd concept van de koopovereenkomst wordt overigens niet gezien als een ‘ondertekende koopovereenkomst’.

Floor plans

ZonZone

Close

Recently viewed