slide
Outstanding Agents. Outstanding Results. DIVA staat voor ‘Ster’: wij willen dan ook uitblinken in optimale service en kwaliteit

For sale: Bolder 9, 3751 ZM Bunschoten-Spakenburg

€620,000
Type of residence House, single-family house, terraced house
Plot size 158 m²
Liveable area 153 m²
Acceptance By consultation

Note

General

Bolder 9 – een tussenwoning met grootse ambities

Met een woonoppervlakte van maar liefst 153 m² en een indeling die je normaal alleen in het hogere segment tegenkomt, is Bolder 9 allesbehalve een standaard tussenwoning. De ruimte, de afwerking en de slimme opzet maken dit huis tot een comfortabele gezinswoning met nét dat beetje extra. En het mooiste? Alles is recent vernieuwd. Denk aan nieu... More info
  • Features

    All characteristics
    Type of residence House, single-family house, terraced house
    Construction period 2006
  • Location

Features

Offer
Reference number 07386
Asking price €620,000
Acceptance By consultation
Last updated 15 September 2025
Construction
Type of residence House, single-family house, terraced house
Type of construction Existing estate
Construction period 2006
Roof materials Tiles
Rooftype Front gable
Isolations Floor, HR glazing, Insulated glazing, Roof, Wall
Surfaces and content
Plot size 158 m²
Floor Surface 153 m²
Living area 27.7 m²
Kitchen area 29.05 m²
Content 530 m³
External surface area storage rooms 13.9 m²
Layout
Number of floors 3
Number of rooms 6 (of which 5 bedrooms)
Number of bathrooms 1 (and 2 separate toilets)
Garden
Type Back yard
Main garden Yes
Orientation North
Condition Normal
Energy consumption
Energy certificate A
Boiler
Heating source Gas
Year of manufacture 2007
Combiboiler Yes
Boiler ownership Owned
Features
Number of parking spaces 1
Water heating Central heating system
Heating Central heating
Kitchen facilities Built-in equipment
Bathroom facilities Bath, Shower, Sink
Has cable TV Yes
Garden available Yes
Has an internet connection Yes
Has a storage room Yes
Cadastral informations
Cadastral designation Bunschoten H 1998
Area 158 m²
Range Entire lot

Description

Bolder 9 – een tussenwoning met grootse ambities

Met een woonoppervlakte van maar liefst 153 m² en een indeling die je normaal alleen in het hogere segment tegenkomt, is Bolder 9 allesbehalve een standaard tussenwoning. De ruimte, de afwerking en de slimme opzet maken dit huis tot een comfortabele gezinswoning met nét dat beetje extra. En het mooiste? Alles is recent vernieuwd. Denk aan nieuwe vloeren, een moderne keuken en stijlvolle stalen deuren die zorgen voor een eigentijdse uitstraling. Alles klopt hier gewoon.

Zodra je binnenkomt, merk je het verschil. De uitbouw op de begane grond zorgt voor twee royale leefruimtes: een gezellige woonkamer én een woonkeuken waar je met gemak een grote eettafel kwijt kunt. De stalen deuren geven karakter en zorgen voor een fijne verbinding tussen de ruimtes. En dankzij de nieuwe schuifpui loopt de tuin naadloos over in de woonkamer—een plek waar je ’s zomers heerlijk buiten leeft.

Boven is het net zo ruim. Op de eerste verdieping vind je drie fijne slaapkamers, een luxe badkamer en een apart toilet. Praktisch én comfortabel. En dan is er nog de tweede verdieping: twee extra slaapkamers en een grote voorzolder met plek voor de was, opslag en alles wat je uit het zicht wilt houden.

Wat dit huis extra aantrekkelijk maakt, is de ligging. Rustig, maar toch op korte afstand van het dorpscentrum. Je wandelt zo naar de winkels of een gezellig terras. En parkeren? Aan de overkant zijn ruime parkeerhavens, dus je hebt altijd plek.

Bolder 9 is een huis dat je verrast. Ruimte, stijl en comfort komen hier moeiteloos samen. Een plek waar je je zó thuis voelt.

Layout

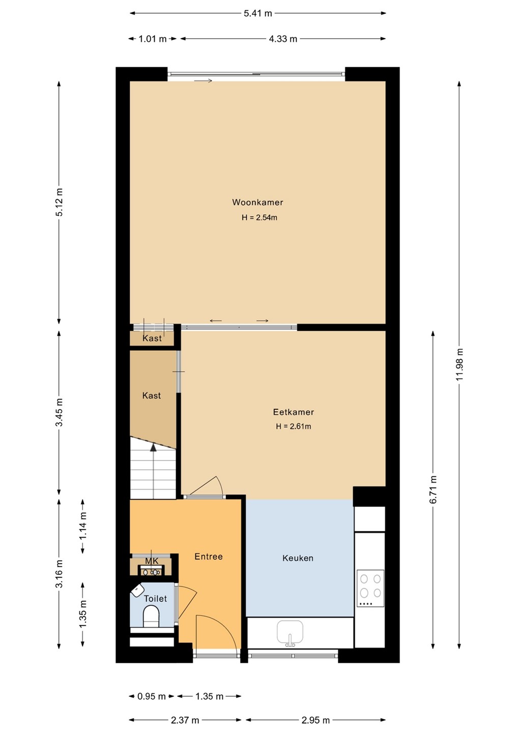
Je komt binnen via de entree met toegang tot de meterkast en het toilet. Vanuit de hal stap je in de eetkamer, die direct in verbinding staat met de keuken aan de voorzijde. Achterin vind je de lichte woonkamer met schuifdeuren naar de tuin. Daarnaast zijn er handige kasten onder de trap voor extra bergruimte.

First floor

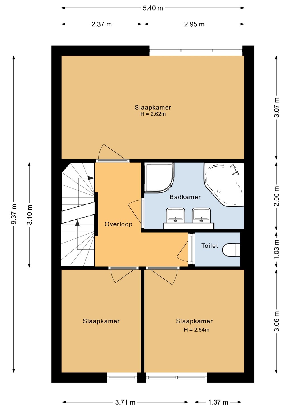
Op de eerste verdieping vind je drie ruime slaapkamers. De moderne badkamer is voorzien van een ligbad, dubbele wastafel en douche. Daarnaast is er een separaat toilet aanwezig, bereikbaar via de overloop.

Second floor

Op de tweede verdieping tref je nog twee slaapkamers, beide voorzien van handige knieschotten. Daarnaast is er op de overloop ruimte voor de wasmachine en extra opbergruimte.

Garden

De woning beschikt over een ruime, onderhoudsvriendelijke achtertuin met veel bestrating, ideaal voor buitenactiviteiten en gezellig samenzijn. Aan de woningzijde zorgen grote schuifpuien voor een fijne verbinding tussen binnen en buiten. Achter in de tuin staat een praktische berging met dubbele deuren en ramen, perfect te gebruiken als opslagruimte of hobbyruimte.

Details

- Recent begane grond verbouwd
Vloeren, deuren, keuken en schuifpui

- Dakkapel voor en achterzijde

- Energielabel A

Floor plans

Brochure(s) and other documents

ZonZone

Features by friends

  • Voldoende parkeergelegenheid
    2
    Endorser Endorser
  • Zonnige tuin
    2
    Endorser Endorser
  • Kindvriendelijke buurt
    2
    Endorser Endorser
  • Gezellige buren
    2
    Endorser Endorser

What friends have to say

Close

Recently viewed