slide
Outstanding Agents. Outstanding Results. DIVA staat voor ‘Ster’: wij willen dan ook uitblinken in optimale service en kwaliteit
Sold

Sold: Bloemenstraat 40, 6414 RM Heerlen

€250,000
Type of residence House, single-family house, terraced house
Plot size 195 m²
Liveable area 79 m²
Acceptance By consultation
Status Sold

Note

General

Tussenwoning met garage, energielabel A en mogelijkheid tot 4 slaapkamers

Aan de Bloemenstraat 40 in Heerlen staat deze instapklare tussenwoning met garage. Een huis waar comfort, duurzaamheid en praktisch wonen samenkomen. Dankzij het energielabel A, 16 zonnepanelen, twee airco’s (koelen én verwarmen) en volledig kunststof kozijnen met dubbel glas geniet je hier van een energiezuinige en aa... More info
  • Features

    All characteristics
    Type of residence House, single-family house, terraced house
    Construction period 1988
    Status Sold
  • Location

Features

Offer
Reference number 00104
Asking price €250,000
Upholstered Not furnished
Furnishing Unfurnished
Status Sold
Acceptance By consultation
Last updated 06 November 2025
Construction
Type of residence House, single-family house, terraced house
Type of construction Existing estate
Construction period 1988
Roof materials Tiles
Rooftype Front gable
Surfaces and content
Plot size 195 m²
Floor Surface 79 m²
Content 301 m³
Surface area other inner rooms 15 m²
External surface area storage rooms 20 m²
External surface area 10 m²
Layout
Number of floors 3
Number of rooms 4 (of which 3 bedrooms)
Number of bathrooms 1 (and 1 separate toilet)
Outdoors
Location On a quiet street, Residential area
Garden
Type Front yard
Orientation West
Condition Normal
Garden 2 - Type Back yard
Garden 2 - Orientation East
Garden 2 - Condition Normal
Energy consumption
Energy certificate A
Boiler
Type of boiler Remeha
Heating source Gas
Year of manufacture 2017
Combiboiler Yes
Boiler ownership Rented
Features
Number of parking spaces 1
Number of covered parking spaces 1
Water heating Central heating system
Heating Air conditioning, Central heating
Bathroom facilities Sink, Toilet, Walkin shower, Washbasin furniture
Parking Detached stone
Has AC Yes
Has fibre optical cable Yes
Garden available Yes
Has a garage Yes
Has roller blinds Yes
Has a storage room Yes
Has a skylight Yes
Has solar panels Yes
Cadastral informations
Cadastral designation Heerlen O 1771
Area 168 m²
Range Entire lot
Ownership Full ownership
Cadastral designation Heerlen O 1766
Area 27 m²
Range Entire lot
Ownership Full ownership

Description

Tussenwoning met garage, energielabel A en mogelijkheid tot 4 slaapkamers

Aan de Bloemenstraat 40 in Heerlen staat deze instapklare tussenwoning met garage. Een huis waar comfort, duurzaamheid en praktisch wonen samenkomen. Dankzij het energielabel A, 16 zonnepanelen, twee airco’s (koelen én verwarmen) en volledig kunststof kozijnen met dubbel glas geniet je hier van een energiezuinige en aangename leefomgeving.
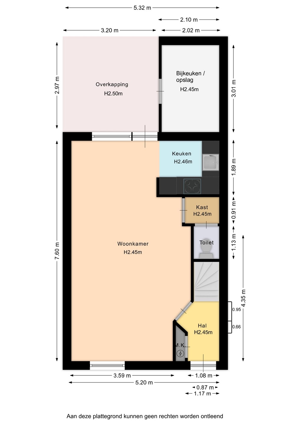
De woning heeft een praktische indeling: op de begane grond vind je een lichte doorzonwoonkamer met toegang tot een overdekt terras, een open keuken en een toilet. De eerste verdieping telt drie slaapkamers en een moderne badkamer (2021). De tweede verdieping is momenteel ingericht met bergruimte, witgoedaansluitingen en de cv-installatie, maar kan eenvoudig worden omgevormd tot vierde slaapkamer of een ruime werkkamer. De tuin is speels aangelegd met meerdere terrassen en een eigen achterom. Als kers op de taart beschikt de woning over een aparte garage en oprit.
De ligging is rustig, in een nette woonstraat, met alle dagelijkse voorzieningen, scholen en sportfaciliteiten op korte afstand. Ook het centrum van Heerlen en diverse uitvalswegen zijn snel bereikbaar.

Layout

Bij aankomst valt direct de verzorgde voortuin op. Via de ontvangsthal met laminaatvloer, garderobe, meterkast en trapopgang, loop je de lichte doorzonwoonkamer in. Grote ramen zorgen voor veel daglicht, en de aanwezige airco maakt het hier in zowel zomer als winter comfortabel. Vanuit de woonkamer is er toegang tot het overdekte terras in de achtertuin.
De open keuken in hoekopstelling met losse kast is voorzien van moderne apparatuur: een inductiekookplaat, afzuigkap, combi-oven, koelkast en vaatwasser. Achter de woonkamer bevindt zich een tussenportaal met toegang tot het toilet.

First floor

De overloop biedt toegang tot drie slaapkamers, de badkamer en trapopgang naar de tweede verdieping. Alle slaapkamers zijn voorzien van een laminaatvloer en veel lichtinval. De slaapkamer aan de voorzijde beschikt over een rolluik, terwijl de master bedroom aan de achterzijde is uitgerust met een eigen airco.
De badkamer (2021) is modern en compleet: geheel betegeld, met een zwevend badkamermeubel met wasbak en spiegel, een toilet en een inloopdouche met glazen wand.

Second floor

Via een vaste trap bereik je de zolderverdieping met tapijt. Hier bevinden zich de aansluitingen voor witgoed, de cv-installatie en extra bergruimte achter schuifpanelen. Deze ruimte biedt volop mogelijkheden om in te richten als vierde slaapkamer, werkkamer of hobbyruimte.

Garden

De achtertuin is verrassend speels ingedeeld met meerdere terrassen. Direct achter het huis is een overkapt terras, perfect voor lange zomeravonden. Via een trapje kom je bij een tweede terras, omringd door borders met veel groen. De tuin heeft bovendien een eigen achterom.
Bijzonder voor een tussenwoning: deze beschikt over een aparte garage, ideaal voor het parkeren van je auto of als extra opslagruimte.

Details

• Energielabel A
• 16 zonnepanelen
• Twee airco’s (koelen en verwarmen)
• Volledig kunststof kozijnen met dubbel glas
• Moderne badkamer (2021)
• Tweede verdieping met mogelijkheid voor vierde slaapkamer of werkkamer
• Garage met oprit aanwezig
• Rustige ligging, nabij voorzieningen
• Huurovereenkomst cv-installatie dient mee overgenomen te worden €29.09 p/mnd

*** Opgegeven tuinmaten zijn circa maten ***

Floor plans

Brochure(s) and other documents

ZonZone

Close

Recently viewed