slide
Outstanding Agents. Outstanding Results. DIVA staat voor ‘Ster’: wij willen dan ook uitblinken in optimale service en kwaliteit
Sold subject to conditions

Sold subject to conditions: Schoolstraat 125a, 9581 GG Musselkanaal

€295,000
Type of residence House, single-family house, detached house
Plot size 675 m²
Liveable area 116.9 m²
Acceptance By consultation
Status Sold subject to conditions

Note

General

**Instapklare woning met karakter aan de Schoolstraat in Musselkanaal**

Laat je verrassen door deze vrijstaande, jaren ‘30 woning met 4 slaapkamers gesitueerd op een ruim perceel van 675m² eigen grond. Dit gezellige woonhuis is nagenoeg volledig gerenoveerd en in de afgelopen jaren flink onder handen genomen—je merkt het aan alles: isolatie dik in orde, deels kunststof kozijnen (onderhoudsvr... More info
  • Features

    All characteristics
    Type of residence House, single-family house, detached house
    Construction period 1932
    Status Sold subject to conditions
  • Location

Features

Offer
Reference number 417
Asking price €295,000
Upholstered Not furnished
Furnishing Unfurnished
Status Sold subject to conditions
Acceptance By consultation
Last updated 24 November 2025
Construction
Type of residence House, single-family house, detached house
Type of construction Existing estate
Construction period 1932
Roof materials Tiles
Rooftype Front gable
Isolations Cavity wall, Floor, HR glazing, Insulated glazing, Roof, Wall
Surfaces and content
Plot size 675 m²
Floor Surface 116.9 m²
Living area 17 m²
Kitchen area 19 m²
Content 457 m³
External surface area 16.8 m²
Layout
Number of floors 2
Number of rooms 5 (of which 4 bedrooms)
Number of bathrooms 1 (and 1 separate toilet)
Outdoors
Location On a busy street, On waterway
Garden
Type Back yard
Main garden Yes
Orientation North east
Has a backyard entrance Yes
Condition Normal
Energy consumption
Energy certificate C
Boiler
Type of boiler Remeha Tzerra
Heating source Gas
Year of manufacture 2017
Combiboiler Yes
Boiler ownership Owned
Features
Number of parking spaces 3
Water heating Central heating system
Heating Central heating, Partial Floor heating
Bathroom facilities Bath, Shower, Washbasin furniture
Has cable TV Yes
Garden available Yes
Has a phone line Yes
Has an internet connection Yes
Has a skylight Yes
Cadastral informations
Cadastral designation Onstwedde C 9184
Area 675 m²
Range Entire lot
Ownership Full ownership

Description

**Instapklare woning met karakter aan de Schoolstraat in Musselkanaal**

Laat je verrassen door deze vrijstaande, jaren ‘30 woning met 4 slaapkamers gesitueerd op een ruim perceel van 675m² eigen grond. Dit gezellige woonhuis is nagenoeg volledig gerenoveerd en in de afgelopen jaren flink onder handen genomen—je merkt het aan alles: isolatie dik in orde, deels kunststof kozijnen (onderhoudsvriendelijk!), en de ruimtes zijn stuk voor stuk fris en licht. Met een woonoppervlakte van ca. 117 m² heb je bovendien alle vrijheid om je eigen draai aan elke kamer te geven. En met mogelijkheden om te slapen en te baden op de begane grond is deze woning ook perfect als je graag levensloopbestendig wilt wonen.

Interesse? Neem voor meer informatie of een bezichtiging snel contact op met team REGIO MAKELAAR in Stadskanaal. Wij kijken ernaar uit om je te verwelkomen en je rond te leiden.

Layout

- Entree, hal, trapopgang
- Gezellige Woonkamer met erker voorzien van laminaat vloer
- Ruime Woonkeuken voorzien van inbouwkeuken met diverse inbouwapparatuur; combimagnetron, koelkast, 5-pits gaskookplaat, RVS afzuigkap en vaatwasser.
- Bijkeuken met cv-opstelling en wasmachine- droger aansluiting
- Toilet met fonteintje
- Badkamer met ligbad, wastafelmeubel, douchehoek en verwarmd middels elektrische vloerverwarming
- Achterhal met achter entree
- Slaapkamer met vaste kastenwand
- Berging

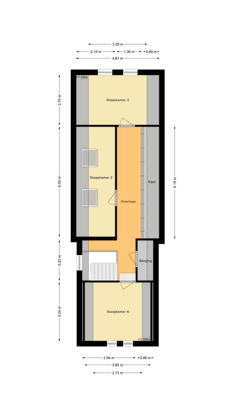
First floor

- Overloop met kastenwand
- 3 Slaapkamers, allen voorzien van een gelijke laminaat vloer.
- Inloopkast (Mogelijkheden voor een 2e toilet. Leidingen reeds aangelegd.)

Details

- Nagenoeg volledig gerenoveerd vanaf 2020
- Dakisolatie
- Vloerisolatie
- Muurisolatie
- Dubbel glas HR, HR++
- Deels voorzien van kunststof kozijnen
- Cv verwarmd, Remeha Tzerra, bouwjaar 2022, eigendom
- Door de gehele woning is een gelijke laminaatvloer gelegd.
- Aan de achterzijde van de woning is een ruime, houten overkapping/veranda geplaatst.
- Eigen inrit
- Diepe achtertuin
- Mogelijkheden voor een garage/schuur

Floor plans

ZonZone

Close

Recently viewed