slide
Outstanding Agents. Outstanding Results. DIVA staat voor ‘Ster’: wij willen dan ook uitblinken in optimale service en kwaliteit
Sold subject to conditions

Sold subject to conditions: Makelaar Rustenburg Oostbroek www.rustenburg-oostbroek.nl

€265,000
Address: Voorthuizenstraat 242, 2573 AS The Hague
Type of residence Apartment, house with shared staircase, apartment
Plot size 730 m²
Liveable area 52.1 m²
Acceptance By consultation
Status Sold subject to conditions

Note

General

NEW ON THE MARKET!
Sales start with a LIVE VIDEO viewing on Thursday, Octobre 21st 2:00 PM. You can register via our website. In addition, individual viewings by appointment are available. Respond via the website or call to book a viewing. PLEASE DO NOT VISIT THE PROPERTY WITHOUT AN APPOINTMENT!

MOVE-IN READY, SPACIOUS OUTDOOR AREA, AND ENERGY EFFICIENT - A UNIQUE. DELUXE AND SUSTAINABLE AP... More info
  • Features

    All characteristics
    Type of residence Apartment, house with shared staircase, apartment
    Construction period 1935
    Status Sold subject to conditions
  • Location

Features

Offer
Reference number DIVA09413
Asking price €265,000
Service costs €100
Upholstered Yes
Upholstered Upholstered
Status Sold subject to conditions
Acceptance By consultation
Last updated 04 November 2025
Construction
Type of residence Apartment, house with shared staircase, apartment
Floor 2nd floor
Type of construction Existing estate
Construction period 1935
Roof materials Bitumen
Rooftype Flat
Certifications Energy performance advice
Isolations Full, HR glazing, Insulated glazing, Wall
Surfaces and content
Plot size 730 m²
Floor Surface 52.1 m²
Content 173 m³
Surface area other inner rooms 0.3 m²
External surface area 27.6 m²
Balcony 3.3 m²
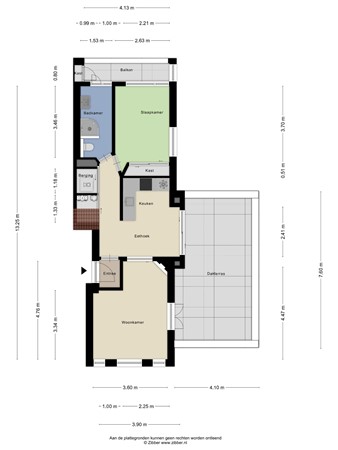
Layout
Number of floors 1
Number of rooms 3 (of which 1 bedroom)
Outdoors
Location Near public transport, Near school, Near shopping center, On a quiet street, Open position, Residential area, Unobstructed view
Energy consumption
Energy certificate A
Boiler
Type of boiler Remeha Tzerra 28C cw4
Heating source Gas
Year of manufacture 2021
Combiboiler Yes
Boiler ownership Owned
Features
Water heating Central heating system
Heating Central heating, Fireplace
Ventilation method Mechanical ventilation, Natural ventilation
Has a balcony Yes
Has a fireplace Yes
Has fibre optical cable Yes
Has an internet connection Yes
Has roller blinds Yes
Has sliding doors Yes
Has ventilation Yes
Association of owners
Registered at Chamber of Commerce Yes
Annual meeting Yes
Periodic contribution Yes
Reserve fund Yes
Long term maintenance plan Yes
Maintenance forecast Yes
Home insurance Yes
Cadastral informations
Cadastral designation 's-Gravenhage AL 5243
Range Condominium
Ownership Full ownership

Description

NEW ON THE MARKET!
Sales start with a LIVE VIDEO viewing on Thursday, Octobre 21st 2:00 PM. You can register via our website. In addition, individual viewings by appointment are available. Respond via the website or call to book a viewing. PLEASE DO NOT VISIT THE PROPERTY WITHOUT AN APPOINTMENT!

MOVE-IN READY, SPACIOUS OUTDOOR AREA, AND ENERGY EFFICIENT - A UNIQUE. DELUXE AND SUSTAINABLE APARTMENT WITH A LARGE, SUNNY ROOF TERRACE — THE PERFECT HOME BASE FOR FIRST-TIME BUYERS, YOUNG COUPLES, AND SINGLES

Be surprised by this charming apartment where comfort, character, and modern living come together. Completely renovated in 2021 and equipped with every convenience.
This is your chance to own a wonderful home, ideally located just around the corner from public transport and local shops.
Schedule your viewing today!

HIGHLIGHTS
• Energy label A – sustainable and future-proof
• Fully renovated in 2021
• Large, sunny roof terrace with open views
• Roller shutters on the terrace side for sun protection and insulation
• Luxury open kitchen with slidingdoor to roofterrace
• Modern bathroom and separate laundry room including washing machine and dryer
• Rear balcony with morning sun and views of greenery

COMFORTABLE AND ENERGY-EFFICIENT LIVING
Thanks to the 2021 renovation, this property has been modernized down to the last detail and offers excellent insulation, resulting in an energy label A.
The modern finishes, efficient layout, and use of sustainable materials ensure a comfortable indoor climate and low energy costs — perfect for anyone seeking a move-in ready home without the need for further renovation.

STYLISH KITCHEN WITH AUTHENTIC CHARACTER
The luxury open kitchen forms the heart of the home and is equipped with all modern appliances. Through the French doors, you step directly onto the roof terrace.
The authentic glass sliding partition adds a charming touch and allows you to stylishly separate the kitchen from the living area when desired.

OUTDOOR LIVING WITH A VIEW – SUNNY ROOF TERRACE AND REAR BALCONY
The beautifully maintained roof terrace is a rare feature — an ideal place to enjoy the sun, share a meal outdoors, or relax in the lounge corner.
With unobstructed views over the sports fields, you can even watch a football match from your terrace.
The terrace is accessible via sliding doors from the kitchen and French doors from the living room — both fitted with roller shutters, providing both shade and extra insulation. At the rear, you’ll find another balcony facing east, perfect for a quiet start to the day overlooking a small green park.

MODERN FEATURES AND SMART LAYOUT
In addition to the luxury kitchen and fresh bathroom, the apartment includes a separate laundry room with space for both washing machine and dryer.
There’s also plenty of storage, neatly and efficiently integrated throughout the home.
Everything has been finished with great care and attention to detail — you can move in immediately without any worries.

CENTRAL LOCATION – THE PERFECT HOME BASE FOR STARTERS, YOUNG COUPLES, AND SINGLES
Located in a lively neighborhood with shops for your daily needs just around the corner and excellent public transport connections.
This apartment is ideal for anyone who values comfort, style, and convenience.

IS THIS YOUR NEW HOME?
Don’t wait too long — this move-in ready and energy-efficient apartment is ready to create new memories.
Contact us today for a viewing and experience for yourself how comfortable living here can be.

DETAILS
• Built in 1935
• Freehold property
• Living area approx. 52 m²
• Energy label A
• Sunny southeast-facing roof terrace
• Northeast-facing rear balcony
• Plastic window frames with HR++ double glazing
• PVC flooring throughout (except bathroom)
• Open kitchen with built-in appliances: induction hob, extractor, dishwasher, refrigerator, freezer, and Quooker boiling water tap
• Bathroom with shower cabin, vanity with matching mirror and wall cabinet, and design radiator
• Central heating: Remeha Tzerra 28C, built in 2021
• Electrical installation: 3 residual current devices + main switch, 11 groups
• Active Owners’ Association (VvE), 1/12th share, contribution €100 per month, reserve fund €26,081 as of 31-12-2024, multi-year maintenance plan (MJOP) present
• Parking: free until 6 PM, thereafter by resident and visitor permit via the Municipality of The Hague
• Central location near public transport, shops, and schools

SALES CONDITIONS
• Offers to be submitted via divamakelaars.nl/eerlijkbieden
• Property available with an attractive minimum bid price
• Non-owner-occupancy clause applies
• Quick transfer possible
• Buyer may choose the notary, provided it is located in The Hague
• Due to the age of the property, an age clause will be included regardless of condition

WANT TO SELL YOUR CURRENT HOME FIRST?
Interested in this property but your own home isn’t sold yet?
Contact our office for a free valuation. We’ll immediately schedule an appointment with one of our agents so you can gain quick insight into your options.

CAN I AFFORD THIS HOME?
As an extra service, we can provide a free and non-binding mortgage calculation through one of our independent partner mortgage advisors.
No long waiting times — often an appointment can be scheduled the same day.
If desired, we can even handle the entire mortgage application process for you.

We have compiled this information with the utmost care, as you may expect from us. However, in exceptional cases, the information may not be entirely complete.
For that reason, we as the selling agent cannot accept liability for its accuracy or completeness.
This information is provided solely as an invitation to schedule a viewing and to make an offer subject to approval.

MEASUREMENT INSTRUCTION DISCLAIMER
The measurement instruction is based on the BBMI standard and is intended to provide a consistent method of measuring the usable living area.
However, differences in measurement results may still occur due to interpretation differences, rounding, or practical limitations during measurement.

Floor plans

Brochure(s) and other documents

Virtual tour

ZonZone

Close

Recently viewed